Architecture + Design
Design In Practice
Atlanta, Georgia
Summer 2024
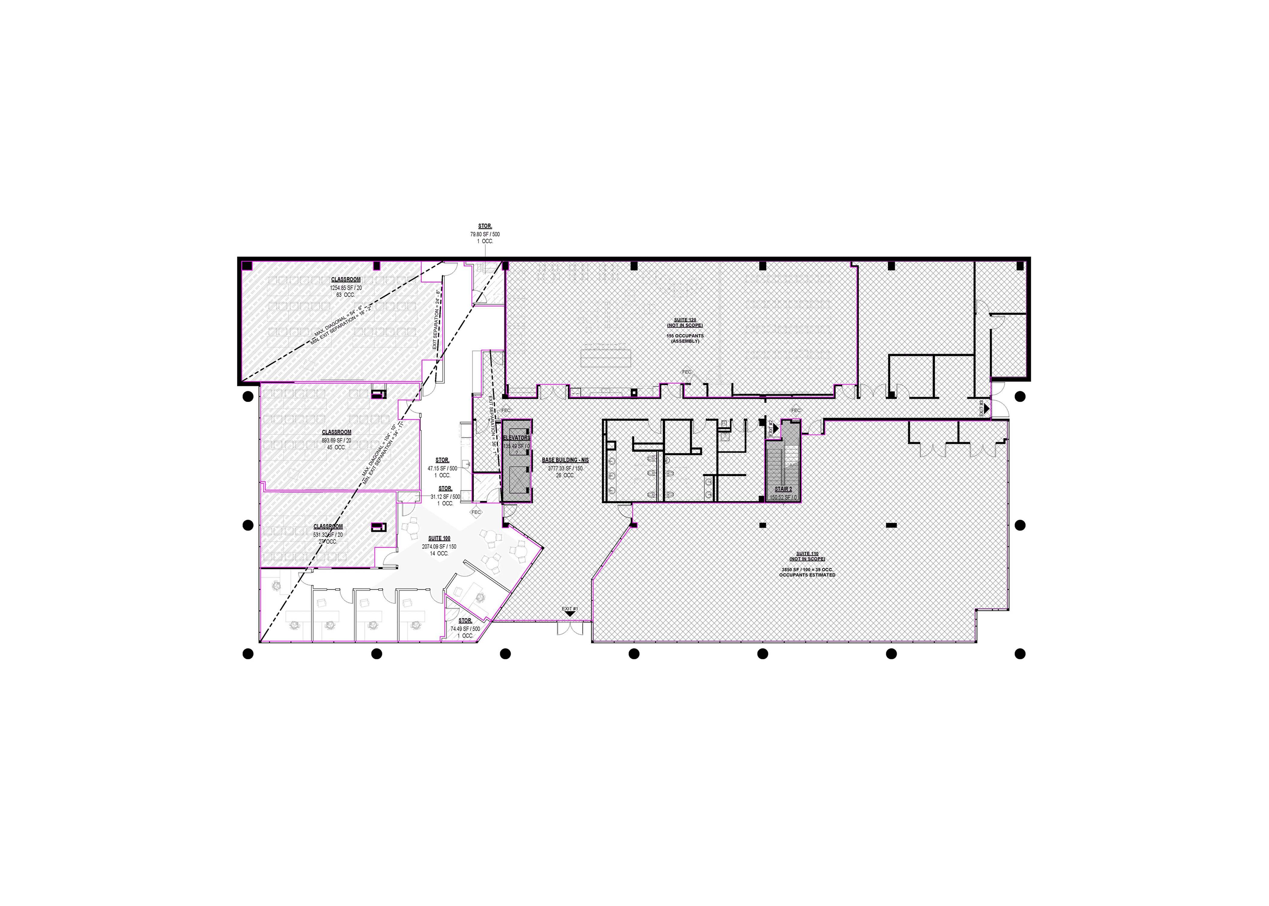
Throughout my Summer 2024 internship with ASD | SKY in Atlanta, Georgia, I had the privilege of contributing to numerous architecture and interior design projects, gaining exposure to a wide range of technical tools and professional experiences. I received valuable mentorship from architects, landscape architects, interior designers, and graphic designers alike, offering me an interdisciplinary perspective on the design process.
My primary responsibilities, some of which are showcased below, included developing construction drawings and details, producing 3D renderings for client presentations, and assisting with the selection of finishes, fixtures, and furniture. Furthermore, I participated in client meetings and site walks, verifying existing conditions and recording detailed field measurements to support design accuracy and coordination.






Architecture + Design
Design In Practice
Atlanta, Georgia
Summer 2024
Throughout my Summer 2024 internship with ASD | SKY in Atlanta, Georgia, I had the privilege of contributing to numerous architecture and interior design projects, gaining exposure to a wide range of technical tools and professional experiences. I received valuable mentorship from architects, landscape architects, interior designers, and graphic designers alike, offering me an interdisciplinary perspective on the design process.
My primary responsibilities, some of which are showcased below, included developing construction drawings and details, producing 3D renderings for client presentations, and assisting with the selection of finishes, fixtures, and furniture. Furthermore, I participated in client meetings and site walks, verifying existing conditions and recording detailed field measurements to support design accuracy and coordination.







Architecture + Design
Design In Practice
Atlanta, Georgia
Summer 2024
Throughout my Summer 2024 internship with ASD | SKY in Atlanta, Georgia, I had the privilege of contributing to numerous architecture and interior design projects, gaining exposure to a wide range of technical tools and professional experiences. I received valuable mentorship from architects, landscape architects, interior designers, and graphic designers alike, offering me an interdisciplinary perspective on the design process.
My primary responsibilities, some of which are showcased below, included developing construction drawings and details, producing 3D renderings for client presentations, and assisting with the selection of finishes, fixtures, and furniture. Furthermore, I participated in client meetings and site walks, verifying existing conditions and recording detailed field measurements to support design accuracy and coordination.






